T: + 34 938 760 099 info@innaltech.com
Generic selectors
Exact matches only
Search in title
Search in content
Post Type Selectors
Descargas

Vallas exteriores

Closed corredera

Sistema completamente modular y versátil para el jardín

Nuestra línea CLOSED es una completa gama de soluciones Outdoor que permite la máxima integración arquitectónica en cualquier proyecto.

Vallas de jardín, celosías, portones en los cerramientos, pérgolas y puertas correderas en la calle.

 

¿Porqué elegirnos?

 

Durante el proceso de diseño, nuestro departamento de I+D puso especial énfasis en lograr una corredera fuerte, pero al mismo tiempo elegante y que permitiera diseños a la carta, totalmente personalizados, en formas y acabados especiales.

 

ULTRA RESISTENCIA

 

Los per­files estructurales tienen espesores incluso superiores a los 2 mm, y secciones que llegan a 120 mm.

Un exhaustivo diseño para garantizar la total fiabilidad y durabilidad en nuestras correderas, ya sean manuales o motorizadas, y de cualquier tamaño, incluido grandes dimensiones.

 

CALIDAD, DURABILIDAD Y FIABILIDAD CERTIFICADAS

 

Nuestra puerta CLOSED está minuciosamente diseñada para garantizar su uso y durabilidad, a lo largo de los años.

El sistema de guías no está en contacto con los perfiles vistos, de modo que en ningún momento pueden rayar ni dañar, por rozamiento.

El sistema de guiado está completamente diseñado y fabricado en nuestras instalaciones, desde nuestro línea de desarrollo y producción bajo la marca WOORBEL.

La motorización y todo el cableado cumple las normativas de seguridad e incorpora un sensor muy sensible para retroceder ante cualquier atrapamiento.

 

COLORES A LA CARTA, CERTIFICADOS QUALICOAT

 

Innaltech no sólo es referente en el desarrollo de sistemas y en innovación de soluciones constructivas en aluminio; También lo somos en el lacado y acabados especiales, con la máxima certificación QUALICOAT.

Incluido nuestra amplia gama de colores superdurables Clase2, que eleva la resistencia al rayado y al desgaste, mejora la retención del brillo y una mayor estabilidad en el color, a lo largo de los años.

 

 

Hojas de corte

Puerta cancela por delante de pared, 1 hoja corredera con hoja VJ70·3550 y enguiador VA70·0550
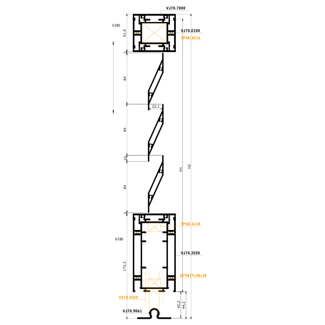
Puerta cancela por detrás de pared, 1 hoja corredera con hoja VJ70·0100 y enguiador VA70·0540
Opción puerta/corredera hoja VJ70-0100 y zócaloVJ70-3550 con tubo/ barrote Shadow Sun R3520 posición horizontal
Opción puerta/corredera hoja VJ70·0100 y zócalo VJ70·3550 con lama XX06·0062
Opción puerta/corredera hoja VJ70·0100 y zócalo VJ70·3550 con lama XX07·0094
Opción puerta/corredera hoja VJ70·0100 y zócalo VJ70·3550 con lama XX07·0086 A
Opción puerta/corredera hoja VJ70-0100 y zócalo VJ70-3550 con lama XX07-0135
Opción puerta/corredera hoja VJ70·0100 y zócalo VJ70·3550 con lama XX07·0086 B
Opción puerta/corredera hoja VJ70·0100 y zócalo VJ70·3550 con lama XX09·6346
Opción puerta/corredera hoja VJ70·0100 y zócalo VJ70·3550 con lama XX09·0140
Opción puerta/corredera hoja VJ70-3550 y zócalo VJ70-3550 con tubo/ barrote Shadow Sun R3520 posición horizontal
Opción puerta/corredera hoja VJ70·3550 y zócalo VJ70·3550 con lama XX06·0062
Opción puerta/corredera hoja VJ70·3550 y zócalo VJ70·3550 con lama XX07·0094
Opción puerta/corredera hoja VJ70·3550 y zócalo VJ70·3550 con lama XX07·0086 A
Opción puerta/corredera hoja VJ70-3550 y zócalo VJ70-3550 con lama XX07-0135
Opción puerta/corredera hoja VJ70·3550 y zócalo VJ70·3550 con lama XX07·0086 B
Opción puerta/corredera hoja VJ70·3550 y zócalo VJ70·3550 con lama XX09·6346
Opción puerta/corredera hoja VJ70·3550 y zócalo VJ70·3550 con lama XX09·0140
Nuestro sitio utiliza cookies para recopilar información sobre su dispositivo y su actividad de navegación. Utilizamos estos datos para mejorar el sitio, garantizar la seguridad y ofrecer contenido personalizado. Puede gestionar sus preferencias de cookies haciendo clic aquí.
Aceptar cookies Configurar Rechazar cookies
Información básica de las cookies
Este sitio web utiliza cookies y/o tecnologías similares que almacenan y recuperan información cuando navega. En general, estas tecnologías pueden tener finalidades muy diversas como, por ejemplo, reconocerte como usuario, obtener información sobre tus hábitos de navegación o personalizar la forma en la que se muestran los contenidos. Los usos específicos que hacemos de estas tecnologías se describen a continuación. Por defecto, todas las cookies están deshabilitadas, excepto las técnicas, que son necesarias para el funcionamiento del sitio web. Si desea obtener más información o ejercer sus derechos en materia de protección de datos, puede consultar nuestra Seguimiento".
Aceptar cookies Configurar
Cookies técnicas necesarias Siempre activas
Las cookies técnicas son estrictamente necesarias para que nuestro sitio web funcione y puedas navegar por él. Este tipo de cookies son aquellas que, por ejemplo, nos permiten identificarte, darte acceso a determinadas partes restringidas de la página si es necesario, o recordar diferentes opciones o servicios ya seleccionados por ti, como tus preferencias de privacidad. Por tanto, están activadas por defecto, no siendo necesaria su autorización. Mediante la configuración de su navegador puede bloquear o alertar de la presencia de este tipo de cookies, aunque dicho bloqueo afectará al correcto funcionamiento de las diferentes funcionalidades de nuestra página web.
Cookies de análisis
Las cookies de análisis son las utilizadas para llevar a cabo el análisis anónimo del comportamiento de los usuarios de la web y que permiten medir la actividad del usuario y elaborar perfiles de navegación con el fin objetivo de mejorar los sitios web.
Confirmar preferencias
Title
Popupcontent
Contacta con nosotros
Aceptar